VERMIETET- 2 Zimmer Seniorenwohnung im 1. OG in Wittmund
Objektbeschreibung der Wohnung
Wohnen für Senioren in der „Villa Fresena“.
Diese wunderschöne, neuwertige Wohnung im 1. Obergeschoss der Wohnanlage wird zum 01.04.2023 neu vermietet.
Es handelt sich um eine barrierefreie Wohnung im Betreuten Wohnen mit toller Hausgemeinschaft im Herzen Wittmunds.
Die Ausstattung ist hochwertig, inklusive Einbauküche, elektrischer Rolläden, einer ebenerdiger Dusche, Handtuchheizkörper und Fußbodenerwärumung im Bad.
Die Betreuung vor Ort wird durch die Johanniter Unfallhilfe Weser-Ems e.V. gewährleistet. Ein separater Vertrag ist abzuschließen.
Vor Ort steht eine Vorrichtung für einen Hausnotruf zur Verfügung.
Allgemeine Angaben
Fragen zu diesem Angebot beantworten wir Ihnen gerne unter den angegebenen Kontaktdaten. Gerne vereinbaren wir einen Besichtigungstermin. Wir bitten um Verständnis, dass wir weitere Informationen nur erteilen, wenn Sie bei Ihrer Anfrage Ihren Namen, Anschrift sowie Ihre Kontaktdaten angeben.
Dieses Angebot ist unverbindlich, freibleibend. Für die Richtigkeit und Vollständigkeit übernehmen wir keine Gewähr.
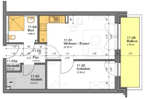
Wohnung 11 – 1 Obergeschoss
Aufteilung
| Wohnen/Essen: | ca. 20,25 m² |
| Schlafen: | ca. 12,26 m² |
| Badezimmer: | ca. 4,98 m² |
| Flur: | ca. 5,44 m² |
| Balkon (25% WF): | ca. 2,09 m² |
| Abstellraum: | ca. 5,33 m² |
Gemeinschaftseinrichtungen
- Großzügiger Gemeinschaftsraum
im Erdgeschoss - Gemeinschaftsküche
Objektdaten
| Lage: | 1. OG – Wohnung Nr. 11 |
| Baujahr: | 2018 |
| Wohnfläche: | ca. 50,35 m² |
| Gemeinschaftsflächen: | ca. 57,40 m² |
| Energieausweis: | Verbrauch: 21,7 kWh/m²a |
Miete 498,00 €
zzgl. NK-VZ 150,00 €
Ansprechpartner
Sie haben noch Fragen oder Interesse an unserem Angebot? Melden Sie sich gerne bei:
Alexander Wiecker
Tel.: 0441/480636-16
E-Mail: wiecker@sip-immobilien.de
Ausstattung und Merkmale
- Seniorengerecht, barrierefrei
- Aufzug
- Einbauküche
- Rauchmelder und Anschluss
für Hausnotruf - Elektrische Außenrolladen
- Balkon
- Seniorengerechtes Badezimmer
mit ebenerdiger Dusche - Betreuungskraft im Haus






