3 Zimmer Seniorenwohnung im 1. OG in Wittmund
Betreuungsservice durch die Johanniter Unfallhilfe
Objektbeschreibung der Wohnung
Großzügige 3-Zimmer-Wohnen für Senioren in der Villa Fresena.
Diese wunderschöne, neuwertige Wohnung im 1. Obergeschoss der Wohnanlage sucht neue Bewohner, vorzugsweise ein Paar.
Es handelt sich um eine barrierefreie Wohnung im Betreuten Wohnen mit toller Hausgemeinschaft im Herzen Wittmunds. Sie leben eigenständig in den eigenen vier Wänden und können bei Bedarf an gemeinschaftlichen Veranstaltungen und Aktionen im Haus teilnehmen.
Die Ausstattung ist hochwertig, inklusive Einbauküche mit Geschirrspülmaschine, elektrischer Rolläden, einer ebenerdiger Dusche, Handtuchheizkörper und Fußbodenerwärumung im Bad.
Die Betreuung vor Ort wird durch die Johanniter Unfallhilfe Weser-Ems e.V. gewährleistet. Ein separater Vertrag ist abzuschließen.
Vor Ort steht eine Vorrichtung für einen Hausnotruf zur Verfügung.
Allgemeine Angaben
Fragen zu diesem Angebot beantworten wir Ihnen gerne unter den angegebenen Kontaktdaten. Gerne vereinbaren wir einen Besichtigungstermin. Wir bitten um Verständnis, dass wir weitere Informationen nur erteilen, wenn Sie bei Ihrer Anfrage Ihren Namen, Anschrift sowie Ihre Kontaktdaten angeben.
Dieses Angebot ist unverbindlich, freibleibend. Für die Richtigkeit und Vollständigkeit übernehmen wir keine Gewähr.
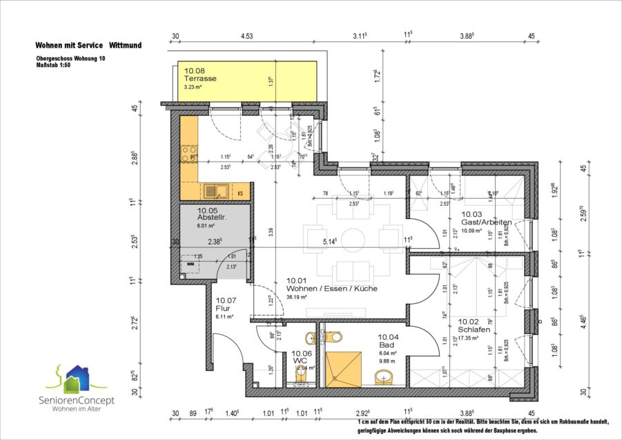
Aufteilung
| Wohnen/Essen: | 36,19 m² |
| Schlafen: | 17,35 m² |
| Gast: | 10,09 m² |
| Flur: | 6,11 m² |
| Bad: | 6,04 m² |
| Gäste-WC: | 2,04 m² |
| Abstellraum: | 6,01 m² |
Gemeinschaftseinrichtungen
- Großzügiger Gemeinschaftsraum
im Erdgeschoss - Gemeinschaftsküche
Objektdaten
| Lage: | 1. OG – Wohnung Nr. 9 |
| Baujahr: | 2018 |
| Wohnfläche: | ca. 85,44 m² |
| Gemeinschaftsflächen: | ca. 57,40 m² |
| Energieausweis: | Verbrauch: 21,7 kWh/m²a |
Miete 840,00 €
zzgl. NK-VZ 260,00 €
Ansprechpartner
Sie haben noch Fragen oder Interesse an unserem Angebot? Melden Sie sich gerne bei:
Alexander Wiecker
Tel.: 0441/480636-16
E-Mail: wiecker@sip-immobilien.de
Ausstattung und Merkmale
- Seniorengerecht, barrierefrei
- Aufzug
- Einbauküche mit Spülmaschine
- Rauchmelder und Anschluss
für Hausnotruf - Elektrische Außenrolladen
- Balkon
- Seniorengerechtes Badezimmer
mit ebenerdiger Dusche - Betreuungskraft im Haus




